Under The Hood Fuse Box Diagram 1998 Chevy S10 - 1997 Chevy S10 Fuse Box Diagram Wiring Diagram Book Skip Knot A Skip Knot A Prolocoisoletremiti It - Park lamps, license plate lamps, electric shift transfer case module, under hood lamp, rear wiper, fog lamp relay, door switch lamp.. Anyways i'm trying to figure out how to get the wires out from the back side of the fuse box. This guide will let you know what fuse does what in your. These mustang fuse diagram are for a 1999, 2000, 2001, 2002, 2003, and 2004 ford mustang under the hood in the engine bay, and inside the car. The fuse box was one of the reasons i feel i got my money's worth from renting a prius for a weekend, while i was waiting for mine to arrive. I felt no compunction at all about opening the hood, the fuse box, etc., of a rental, to figure out where everything was.

If it gets power, then turn the headlights on and check for power at the yellow wire ( terminal d). Mine is a 1994 chevrolet s10 2.2. I am going to be using the underdash fuse box i picked up from an 02 s2000 for a custom project (f20c powered street truck). The fuse box is located on the passenger side of the engine compartment next to the strut tower. I need the diagram for the fuses under the hood.

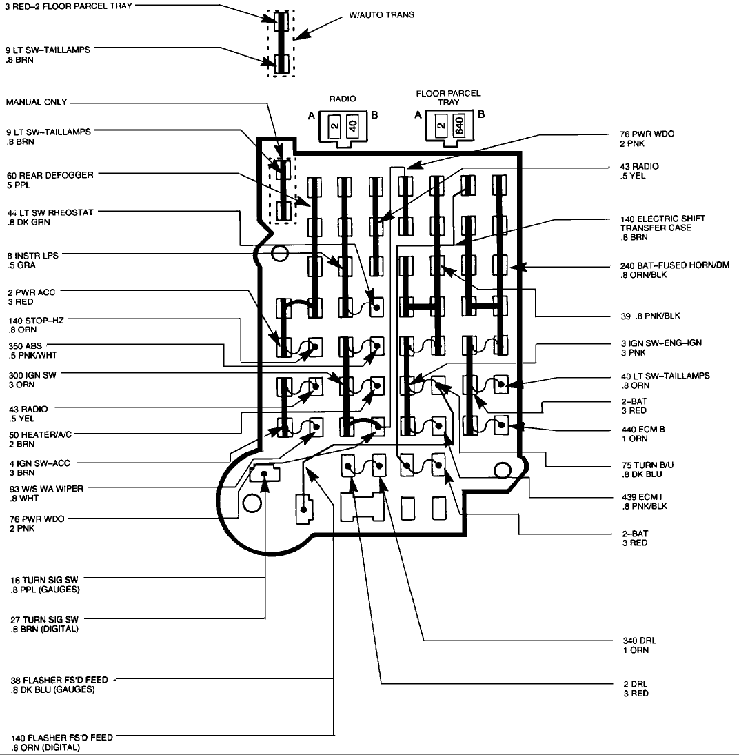
1989 Chevy S10 Blazer Fuse Box Diagram Wiring Diagram Male Activity A Male Activity A Miceincampania It
1989 Chevy S10 Blazer Fuse Box Diagram Wiring Diagram Male Activity A Male Activity A Miceincampania It from circuitswiring.com
The owners manual only shows interior fuses !! The fuse block under the hood at the driver's de of the engine compartment. If so, where is it? Headlights not working on 95 chevy s10. A location diagram of the. I have a 99' pullout with the harness and fuse box so i could look , but not till the weekend , im not near the motor. Honda accord fuse box diagram fuse box diagram pulling fuses is easy. The fuse box was one of the reasons i feel i got my money's worth from renting a prius for a weekend, while i was waiting for mine to arrive.

I need the diagram for the fuses under the hood.

These mustang fuse diagram are for a 1999, 2000, 2001, 2002, 2003, and 2004 ford mustang under the hood in the engine bay, and inside the car. Anyways i'm trying to figure out how to get the wires out from the back side of the fuse box. Anyone have the under hood fuse panel diagram that shows what fuse is for what. The interior fuse box is located use cookies to give you the best possible experience on our website. The 40 and the 30 will be found under the hood, in the fuse box, the two ten amp fuses are in the fuse box under the dash. Formally called the chevrolet c/k, c/k is a series of trucks manufactured by general motors and marketed under the chevrolet and gmc brands. Reason i ask is because i put a bran new battery in and still have no power anywhere else in the truck. I felt no compunction at all about opening the hood, the fuse box, etc., of a rental, to figure out where everything was. I am going to be using the underdash fuse box i picked up from an 02 s2000 for a custom project (f20c powered street truck). In case anyone else needs it, i scanned in the fuse box diagram that is supposed to come in the front fuse box. The fuse box is located on the passenger side of the engine compartment next to the strut tower. Any know where i can get one? (i had the new car checklist form.

A location diagram of the. I need the diagram for the fuses under the hood. The fastest and easiest way to locate and identify fuses is to consult your there are two fuse boxes on a 1998 chevy venture. .diagrams, the underhood box that contains fuses and relays are numbered but i have searched high and low for a diagram anyone have a q7 repair manual that shows underhood fuse locations ? .for the under hood fuse box.does anybody please have a diagram?

2000 Chevy Blazer Fuse Box Wiring Diagram Star Delta A Star Delta A Cinemamanzonicasarano It
2000 Chevy Blazer Fuse Box Wiring Diagram Star Delta A Star Delta A Cinemamanzonicasarano It from www.2carpros.com
The fuse box is located on the passenger side of the engine compartment next to the strut tower. Fuses are marked by their amerage, hence the 10 on figure 5c. I check the fuses behind the drivers side door to see if they were fine and none of them are. Is there a fuse under the hood? The fastest and easiest way to locate and identify fuses is to consult your there are two fuse boxes on a 1998 chevy venture. Let me know your results. Any know where i can get one? Anyways i'm trying to figure out how to get the wires out from the back side of the fuse box.

Park lamps, license plate lamps, electric shift transfer case module, under hood lamp, rear wiper, fog lamp relay, door switch lamp.

Let me know your results. I check the fuses behind the drivers side door to see if they were fine and none of them are. Anyways i'm trying to figure out how to get the wires out from the back side of the fuse box. Mine is a 1994 chevrolet s10 2.2. They show the fuse locations, sizes, and descriptions. Honda accord fuse box diagram fuse box diagram pulling fuses is easy. Anyone have the under hood fuse panel diagram that shows what fuse is for what. Oldsmobile regency 1996 fuse box/block circuit breaker diagram oldsmobile cutlass 2.8l 1989 under dash fuse select category abarth acura aixam alfa romeo aprilia aston martin audi bayliner bmw bobcat buick cadillac caterham chevrolet chevy chrysler citroen dacia daewoo daf. I need the diagram for the fuses under the hood. Is there a fuse under the hood? I am going to be using the underdash fuse box i picked up from an 02 s2000 for a custom project (f20c powered street truck). Fuses are marked by their amerage, hence the 10 on figure 5c. .diagrams, the underhood box that contains fuses and relays are numbered but i have searched high and low for a diagram anyone have a q7 repair manual that shows underhood fuse locations ?

Honda accord fuse box diagram fuse box diagram pulling fuses is easy. Reason i ask is because i put a bran new battery in and still have no power anywhere else in the truck. I need a diagram for the fuse box. The 40 and the 30 will be found under the hood, in the fuse box, the two ten amp fuses are in the fuse box under the dash. Where can i find pitures of the fuse box under the hood of oct 06.

Under Hood Fuse Box Diagram For 98 Chevy 1500 Wiring Diagram Sum Note B Sum Note B Agriturismoduemadonne It
Under Hood Fuse Box Diagram For 98 Chevy 1500 Wiring Diagram Sum Note B Sum Note B Agriturismoduemadonne It from repairguide.autozone.com
This guide will let you know what fuse does what in your. They show the fuse locations, sizes, and descriptions. I have a 99 silverado 5.3l. A location diagram of the. The fastest and easiest way to locate and identify fuses is to consult your there are two fuse boxes on a 1998 chevy venture. I check the fuses behind the drivers side door to see if they were fine and none of them are. There is no fuse box under this hood. .for the under hood fuse box.does anybody please have a diagram?

Is there a fuse under the hood?

.for the under hood fuse box.does anybody please have a diagram? The fastest and easiest way to locate and identify fuses is to consult your there are two fuse boxes on a 1998 chevy venture. Anyone have the under hood fuse panel diagram that shows what fuse is for what. Where can i find pitures of the fuse box under the hood of oct 06. I felt no compunction at all about opening the hood, the fuse box, etc., of a rental, to figure out where everything was. The interior fuse box is located use cookies to give you the best possible experience on our website. Is there a fuse under the hood? I need the diagram for the fuses under the hood. Power distribution center (under the hood) looking at the pdc from the headlamp delay module, instrument cluster fuse #10 transmission. Hope this helps, and thanks for choosing fixya. I check the fuses behind the drivers side door to see if they were fine and none of them are. A location diagram of the. They show the fuse locations, sizes, and descriptions.

By